50
$799,700 Sale
Listed 6 hours ago
190 Emily Street
· 4
· 2
· 13
· 2000-2500
Listing History
Buy/Sell/Terminated/Expired listing history for 190 Emily Street
Key Facts
Key facts for 190 Emily Street
Property Type
Apartment, 2-Storey
Parking
Detached 1 garage, 13 parking
MLS #
X12457851
Size
2000-2500 sqft
Basement
Partial Basement,Walk-Up
Listed on
2025-10-10
Lot size
98 x 150.0
Tax
$2,823 /yr
Days on Market
1
Approximate Age
100+
Maintenance Fee
-
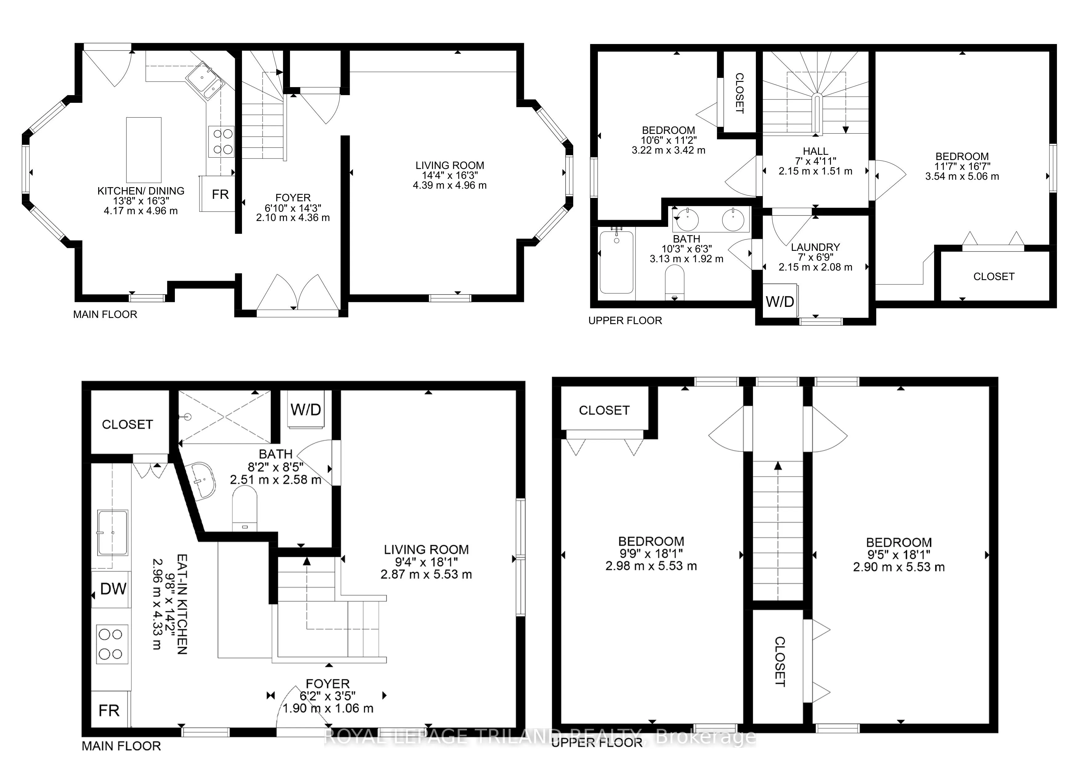
Description
INCREDIBLE DUPLEX PROPERTY OR MULTI-GENERATIONAL FAMILY HOME | OVERSIZED .344 ACRE LOCATION INCLUDES 2 LOTS, 1 IS VACANT | PAY YOUR MORTGAGE W/ 2nd UNIT INCOME | MOST PRIVATE YARD TOWN, FULLY FENCED IN! The potential of this extremely rare & unique 2 FULL LOT property is simply exceptional. On the w...estern lot, you get an incredibly well-maintained 2-unit century home loaded with charm & updates throughout it's 2100 SQ FT of pristine living space, plus basement, detached garage, & large shed for storage. Each unit contains a generous kitchen & comfortable living rooms, 2 spacious bedrooms, full bath, & laundry for a total of 4 BEDS, 2 FULL BATHS, 2 KITCHENS, 2 LAUNDRIES! The owner's unit offers 1200 SQ FT across 2 levels w/ impressive 11 FT ceilings, a large eat-in kitchen w/ direct access to the BBQ deck & western side of yard, a spectacular living room w/ oversized windows, & 2 roomy bedrooms upstairs + a new bath/laundry area (2025). Upstairs is accessed via the quintessential soaring century foyer just beyond the new front doors, porch deck, & rooftop over porch. The 2nd unit offers 900 SQ FT of pristine living space (just done in 2021) & it's own yard/outdoor space. Almost every window in the home is just over 5 yrs old, furnace/AC/hot water heater in main unit 2018, furnace/AC in 2nd unit 2021 (both water heaters are owned), & there are SEPERATE METERS for each unit for electricity, gas, & water! Plus, you get double appliances included, w/ the appliances in the 2nd unit ALL NEW in '21 & the washer/dryer in the front unit new in '25! Even the roof is barely 10 yrs old - updates galore! Units could be re-connected to make a 4 bed home. The eastern lot contains only the shed, fostering infinite possibilities including the development of a 2nd lot for an 2nd family home/home to sell, the sweetest pool backyard on the block, the addition of a large shop, etc. The stellar backyard pergola & insulated man cave w/ wood stove complete the package! This one is loaded!
Similar Properties (No results)
Courtesy of: ROYAL LEPAGE TRILAND REALTY